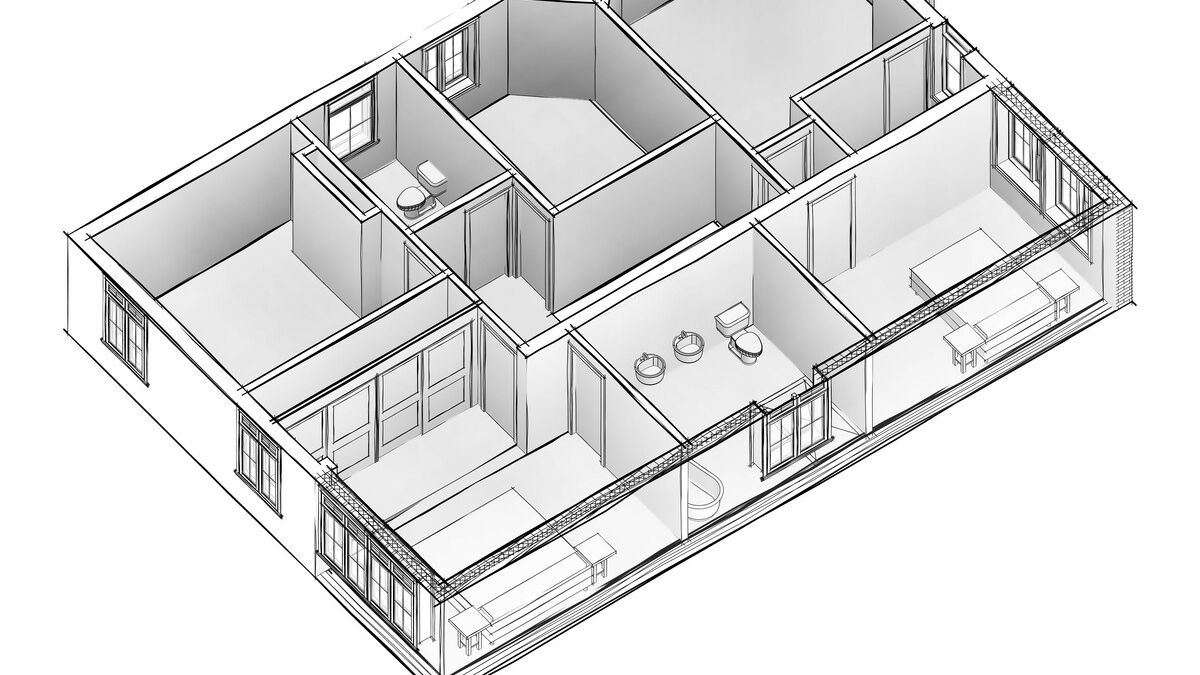
Project Overview
Exciting Project working with clients eager to create their modern dream home whilst retaining the period features of the building.
We were responsible for the space planning design, planning permissions, building regulation approval and overseeing the build.
The client had fantastic, strong design ideas which we were all too happy to incorporate. It was with great pride that we could provide the canvas for the client to stamp their own design style on the home. The majority of the interior design was by the client themselves. It was a great cooperative effort and the results are amazing.
Light, bright spacious rooms with period detailing throughout.
Posted by Wouter De Jager on March 21st 2020





































